Minikodit nousevat mediassa säännöllisesti puheenaiheeksi, kun mietitään ratkaisuja uudenlaisiin mielekkäisiin asumismuotoihin. Olemme julkaisseet oman minikoti-mallimme, jossa ulkomittojen lisäksi pientä on myös hinta.
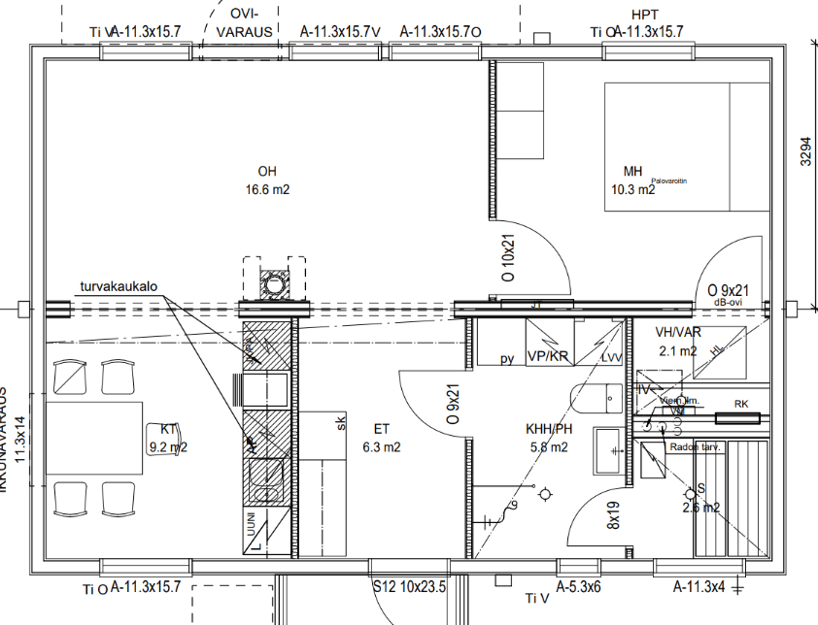
Minitalo-termiä ei ole virallisesti määritelty, mutta yleisesti ottaen minitaloista puhuttaessa tarkoitetaan 50-70 neliöisiä pientaloja, jotka on tarkoitettu vakituiseen asumiseen 1-2 hengelle. Kaakamo-mallimme huoneistoala on 55 neliötä.

Tässä Kaakamo-nimisessä mallissa yhden tilaelementin syvyys on alle 3,5 metriä, jolloin kuljetus hoituu ilman erikoiskuljetusstatusta. Yleensä kaikkiin Kiiruna Taloihin kuuluu vakiona maalämpö, mutta näin pieneen taloon se olisi ylimitoitettua. Edullisempi lämmönlähde (sähkökattila+ILP) ja kapeampi tilaelementin leveys tuovat näin ollen myös hinnan järkevälle tasolle, omakotitalon mukavuuksista tinkimättä.
Omakotitalojen koko on keskimääräisesti hieman pienentynyt edellisen 10 vuoden aikana – minikodit eivät kuitenkaan ole vielä nousseet ilmiöksi muualla kuin mediassa
Uusien omakotitalojen koko on pitkällä aikavälillä kääntynyt laskuun: keskikoko on ollut laskusuunnassa 2010-luvulta lähtien. Erityisesti viime vuosina kustannus-, energiatehokkuus- ja tonttirajoitteet ovat vaikuttaneet talojen pienentymiseen. Vuonna 2024 uuden omakotitalon huoneistoala oli keskimäärin 132 neliötä.
Minitalot herättävät kiinnostusta ekologisia ja taloudellisia asumisratkaisuja pohdittaessa. Todellisuudessa harva omakotirakentaja on esimerkiksi ekologisuuden nimissä valmis rajoittamaan talon kokoa niin radikaalisti kuin minitalojen kohdalla olisi tarve. Yhtään suuremmalle ruokakunnalle minikodin vaatima minimalistinen elämäntapa on Suomen vaihtelevissa sääolosuhteissa haastava tehtävä. Yhden ja kahden hengen talouksille minikoti taas voi olla aidosti tarpeita vastaava asumismuoto. Todellista minitalo-buumia ei kuitenkaan Suomessa ole vielä nähty median suuresta innostuksesta huolimatta.
Oma rauha ja riittävät tilat motivoivat omakotirakentamiseen – minitalot tarjoavat aidon omakotivaihtoehdon myös yksin eläville
Alle 80 neliöisiä omakotitaloja rakennetaan Suomessa vakituiseen asuinkäyttöön vuosittain vain muutamia kymmeniä. Omakotihankkeeseen ryhdyttäessä suurimpia motivaattoreita on yleensä oma rauha ja riittävä tila. Riittävään tilaan liittyy olennaisesti myös säilytystila, joka jää helposti kerros- tai rivitaloasunnossa hieman liian vähäiseksi.
Kerros- ja rivitalot eivät vastaa kaikkien yksin tai kaksin elävien asumistarpeisiin ja -toiveisiin. Omakotitalo – pienikin sellainen – on omalla tontillaan, jolloin haave omasta pihasta on mahdollista toteuttaa. Moni yksinelävä arvostaa omakotitalon etuja myös esimerkiksi lemmikkien kanssa.
Minitalo-mallimme on erinomainen vaihtoehto myös loma-asumiseen
Minitalo on erinomainen ratkaisu myös mökiksi tai vapaa-ajanasunnoksi. Mökillä tai vapaa-ajanasunnolla elämä usein keskittyy paljon myös varsinaisen asuinrakennuksen ulkopuolelle. Kaakamo-mallimme on saatavilla myös ilman saunaa, mikäli tontilla on esimerkiksi ulkosauna tai tarvetta saunalle ei muuten vain ole.
Kaakamo-mallin kapeammat tilaelementit mahdollistavat tämän mallin kuljetuksen hieman kapeammankin mökkitien päähän.


Lue lisää:
Muuttovalmis koti kolmessa kuukaudessa – sujuvaa rakentamista myös talviaikaan
Nämä kodin ratkaisut kiinnostavat rakentajia juuri nyt
