Näin vuoden loppuun haluamme esitellä uudet talomallimme, joiden suunnittelussa on maksimoitu yleisten tilojen neliöt.
Uusissa malleissa olemme kehittäneet suosittujen talomalliemme pohjalta pohjakuvia niin, että yleiset oleskelutilat ovat suurempia ja avarampia. Vastaavasti makuutilojen kokoa on hieman pienennetty. Näillä muutoksilla oleskelutilaa saadaan lisää ilman suuria lisäkustannuksia.
Tämä muutos heijastaa nykypäivän asumisen tarpeita, joissa perheen yhteinen aika ja viihtyisät oleskelutilat ovat keskeisessä roolissa.
Tutustumme malleihin tarkemmin tässä tekstissä.
SL-mallin koti on budjettiystävällinen valinta
Kun rakentamisen budjetti on rajallinen, mutta toive oman kodin tilaratkaisuista priorisoi neliöitä yhteiselle oleskelulle, uudet SL-mallimme ovat hyvä vaihtoehto. Tarve suuremmalle olohuoneelle sekä ruokailutilalle korostuu erityisesti silloin, kun kodissa järjestetään illanistujaisia tai vietetään aikaa oman perheen kesken.
Yhtenäinen tila maksimoi yhdessäolon, ja säilyttää yhteyden keittiön ja olohuoneen välillä.
SL-mallin kotia kannattaa pohtia vaihtoehtona, jos toiveissa on yleisten tilojen neliöiden maksimointi, mutta tarvetta kokonaispinta-alaltaan suuremmalle kodille ei ole. SL-mallit ovat myös budjettiystävällinen vaihtoehto, kun kodin kokonaispinta-ala ei kasva.
Makuuhuoneet ovat uusissa malleissa hieman totuttua pienempiä. Suunnittelussa olemme kiinnittäneet huomiota siihen, että makuutilat ovat edelleen viihtyisiä ja toimivia.
.jpg?width=665&height=443&name=Olohuone%20(1).jpg)

Huomioitavaa uusissa malleissa
Uusissa malleissa kannattaa kiinnittää huomiota seuraaviin seikkoihin:
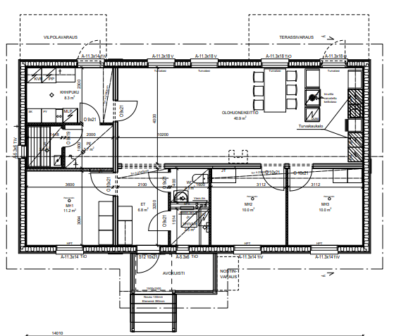
Moduulit näissä malleissa on muokattu vakiomallista siten, että olohuone-keittiömoduulia on levennetty neljän metrin leveyteen asti normaalin 3,6 metrin sijaan. Vastaavasti moduuli, jossa makuuhuoneet sijaitsevat, on 3,2 metriä leveä. Kokonaismitta pysyy samana, mutta olohuone-keittiöön saadaan lisää tilaa tällä pohjaratkaisulla.
Kukkola SL- sekä Puuluoto SL -malleissa päätymoduulin makuuhuoneen kokoa on suurennettu, jolloin sauna- ja kylpyhuonetila on perinteiseen S-malliin verrattuna hieman pienempi. Kodinhoitohuone on sijoitettu on talon päätyyn olohuoneen jatkeeksi.
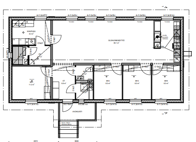
Kukkola ESL -mallissa kulku pitkänmalliseen kodinhoitohuoneeseen on suoraan eteisestä. Myös tässä mallissa tilojen koot sekä niiden sijainnit poikkeavat vakiomallista.

Kukkola 118 SL

Kukkola 118 ESL

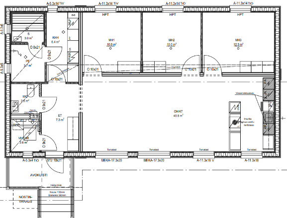
Puuluoto 133 SL
Oleskelutilat ovat näissä malleissa näin ollen suuremmat. Neljä metriä leveässä moduulissa on malliltaan suurempi vakiokeittiö, ruokailutilaan mahtuu vaivatta suurempikin ruokailuryhmä, ja esimerkiksi takan sijoittaminen olohuoneeseen onnistuu niin, että sohvaryhmälle jää reilusti tilaa.
Makuuhuoneiden lukumäärä on sama kuin vakiomalleissakin. Suurin makuuhuone on reilusti yli 10 m2. Pienemmät makuuhuoneet sopivat erinomaisesti työ- ja vierashuonekäyttöön sekä esimerkiksi lastenhuoneiksi.
Kiiruna Talojen SL-malleja ovat: Kukkola 118 SL, Kukkola ESL-, Puuluoto 133 SL. Kaikki nämä ovat saatavilla myös hirsiversiona.
