Konkretiaa mökkihaaveilijoille: muuttovalmiin mökin rakennuttamisen hinta.
Talvilomat ovat takana, kevätaurinko sulattelee hankia, kesän mökkihaaveet alkavat nostaa päätään... Talviasuttavan mökin kanssa ei tarvitse tehdä kompromisseja loma-aikataulujen suhteen. Mökki on käytettävissä ympäri vuoden ja mahdollistaa tätä kautta myös esimerkiksi etätyöskentelyn tai vuokraustoiminnan. Vaikka mökki itsessään olisi pieni, tietyt mukavuudet, kuten varma ja toimiva lämmitys, nykyaikainen keittiö, wc- ja pesutilat mahdollistavat mökin korkean käyttöasteen ympäri vuoden.
Talviasuttavan mökin avaimet käteen -hinta: esimerkkinä reilu 50 neliöinen Kaakamo-malli
Mallistostamme löytyy muutamia erityisesti vapaa-ajankäyttöön soveltuvia pohjaratkaisuja ääripäinään tilava, kaunis ja näyttävä L-mallinen Aamurusko sekä pieni, edullinen, pelkistetty Kaakamo.

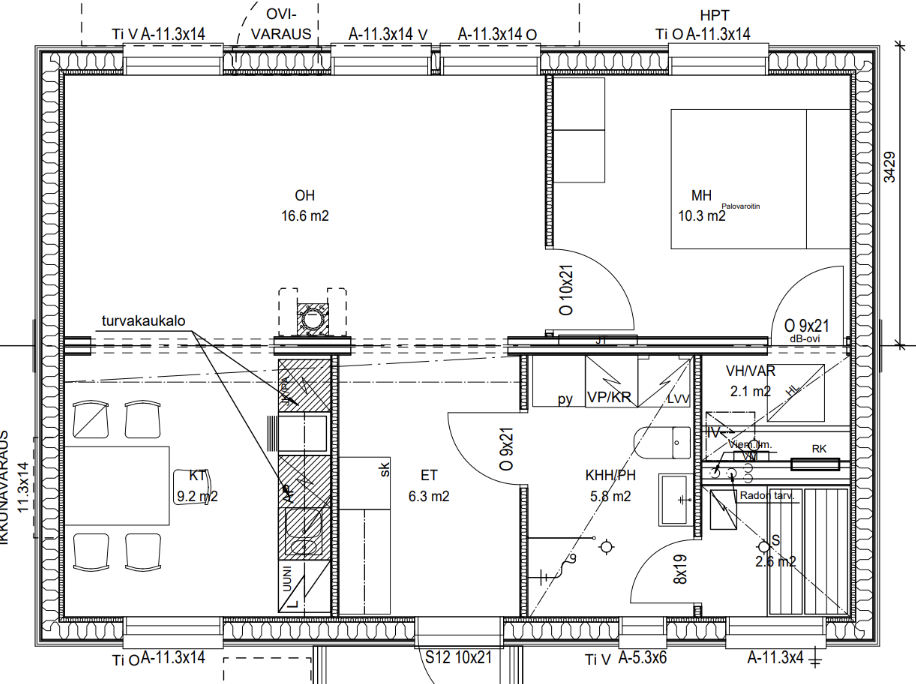
KAAKAMO: 1 MH, ET, VH, KHH/KPH/S, OH/KEITTIÖ, WC
"Kaakamo on yhdellä makuuhuoneella varustettu valoisa, kompakti mökki. Säilytystilaa löytyy pienen talon mittoihin nähden runsaasti: makuuhuoneen ja eteisen kiinteät kaapistot sekä vaatehuone/varasto makuuhuoneen yhteydessä. Toimivat kodinhoitohuone- ja pesutilat kompaktein neliöin. Keittiö on sijoitettu fiksusti etäälle makuuhuoneesta.
Valoisa olohuone on tämän mökin keskipiste. Olohuoneessa on paikka tulisijalle."

Tässä blogipostauksessa keskitymme tämän malliston pienimmän mallin ominaisuuksiin ja hinnoitteluun. Mökki on useimmille jo talouden toinen kiinteistö, jolloin siihen käytettävissä olevat varat ovat luonnollisesti pienemmät. Mukavuuksista, estetiikasta tai tunnelmasta ei silti tarvitse tinkiä. Pieni on kaunista, etenkin kun kyse on mökin hinnasta.
Kaakamo-mallin hintaesimerkit, hirsimökki (3/2026)
55 neliöisen hirsimökin hinta Paraisille, Varsinais-Suomeen: 181 200 €
55 neliöisen hirsimökin hinta Inariin, Lappiin: 185 800 €
55 neliöisen hirsimökin hinta Savonlinnaan, Saimaan rannalle Etelä-Savoon: 181 200 €
55 neliöisen hirsimökin hinta Tampereelle, Näsijärven rannalle Pirkanmaalle: 181 200 €
Mitä muuttovalmiin hirsimökin hintaan kuuluu?
Yllä esitettyihin hintoihin kuuluu muuttovalmis hirsimökki perustuksineen, kiinteine kalusteineen (keittiö, wc, khh jne.) ja valmiine pintoineen (lattia, seinät, katot). Kiiruna Taloissa on yleensä hintaan kuuluvana lämmönlähteenä maalämpö, mutta Kaakamo-malli on poikkeus. Hintaan kuuluvana lämmitysratkaisuna on sähkökattila ja ilmalämpöpumppu.
Onko mökin pakko olla hirsimökki?
Monille mökkiunelma konkretisoituu nimenomaan hirsisen mökin muodossa. Hirren monet hyvät puolet, kuten puupintojen kosteutta tasaavat ominaisuudet ja esteettiset ulottuvuudet ovat useimmille rakentajille tuttuja ja haluttuja. Käyttämämme painumaton hirsi ei myöskään rajoita talon arkkitehtuuria määräänsä enempää: painumaton hirsi mahdollistaa esimerkiksi suuret ikkunat ja erilaiset muokkaukset talon ulkoiseen ilmeeseen.
Mikäli hirsi materiaalina ei kuitenkaan ole sinulle välttämätön, voit onnitella itseäsi mökin hieman pienemmästä hintalapusta.
Kaakamo-mallin hintaesimerkit, rankarunkoinen mökki (3/2026)
55 neliöisen mökin hinta Paraisille, Varsinais-Suomeen: 158 000 €
55 neliöisen mökin hinta Inariin, Lappiin: 162 600 €
55 neliöisen mökin hinta Savonlinnaan, Saimaan rannalle Etelä-Savoon: 158 000 €
55 neliöisen mökin hinta Tampereelle, Näsijärven rannalle Pirkanmaalle: 158 000 €
Kannattaako mökki rakentaa itse vai hankkia muuttovalmiina?
Mökkeilyn merkitys on muuttunut vuosikymmenten aikana. Nykyisin vapaa-ajanasunnolta odotetaan usein samanlaisia mukavuuksia kuin omakotitalolta: toimivaa lämmitystä, modernia keittiötä ja mahdollisuutta viettää siellä aikaa ympäri vuoden. Samanlaista taitoa, halua tai aikaa mökin rakentamiselle kesäloma kerrallaan ei myöskään enää ole.
Muuttovalmiin mökin etuja ovat esimerkiksi:
- Nopea rakentaminen – lomakoti valmistuu nopeasti, jolloin aikaa itse mökkeilyn, ei rakentamisen, parissa päästään viettämään mahdollisimman nopeasti.
- Selkeä aikataulu ja kustannukset – tehdasrakentaminen tekee projektista ennakoitavan, jolloin mökille on helpompi saada myös rahoitus
- Laadukas rakentaminen – mökki rakennetaan hallituissa olosuhteissa kuivaketjua noudattaen. Huolellisesti rakennetun mökin jälleenmyyntiarvo säilyy.
- Vähemmän stressiä rakentajalle – rakennuttajan ei tarvitse olla jatkuvasti työmaalla valvomassa rakennustöiden edistymistä.
Nämä muuttovalmiin toimituksen edut konkretisoituvat erityisesti silloin, kun mökkiä rakennetaan eri paikkakunnalle kuin vakituinen koti.
Alla olevasta videosta pääset kuulemaan asiakkaidemme ajatuksia, jotka rakennuttivat muuttovalmiin vapaa-ajanasunnon Kilpisjärvelle Seinäjoelta käsin.
Pieni ja edullinen mökki muuttovalmiina – toimitus onnistuu kaikkialle Suomeen
Kaikki Kiiruna Talojen mallit on mahdollista toimittaa kaikkialle Suomeen. Omat asentajamme ovat mukana vapaa-ajanasunnon pystytyksessä ja viimeistelyssä. Rakentamisprosessi on täysin toistettavissa riippumatta talomallista tai rakennuspaikkakunnasta. Tämä on toimintatapamme ehdottomia vahvuuksia.
Mökkiä suunnitellessasi huomioi myös mökkitontin ominaisuudet ja mahdolliset rajoitteet, esimerkiksi tavallista kapeammat tiet tai vaativat maastonmuodot. Kaakamo-mallissa tilaelementin syvyys on alle 3,5 metriä. Tämän ansiosta ko. mallin kuljetus tehtaalta työmaalle kahtena tilaelementtinä onnistuu ilman erikoiskuljetusstatusta. Tämä mahdollistaa mallin edukkaamman hinnan ja tuo käytännön helpotusta kuljetus- ja asennusprosessiin.
